
The House and The Tree
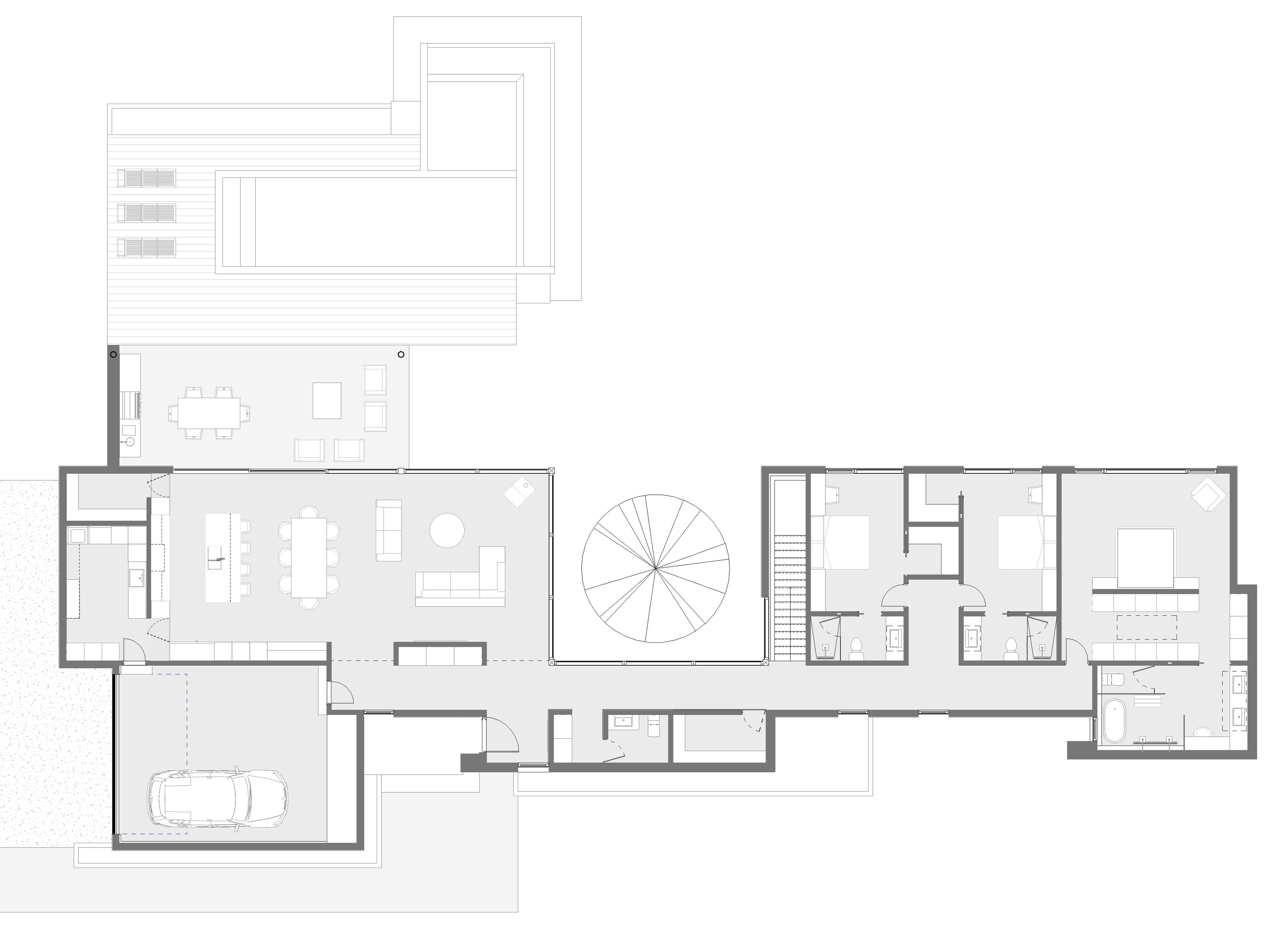
This house is organized around a central courtyard that brings light, views, and nature into the heart of the home. The courtyard becomes the visual and spatial anchor of the project, connecting the living areas with the private bedrooms while maintaining privacy and calm.
The architecture is expressed through a series of horizontal volumes that respond to the surrounding landscape. Wood cladding and natural stone create a material palette that integrates the house with its forested setting.
Large openings frame views toward the courtyard and outdoor living areas, allowing the interior spaces to expand toward the landscape while maintaining a strong connection between architecture and nature.





